Nan-o Bldg.新虎のテナント募集中区画
| 階数 | 面積 | 賃料(共益費含む) | 保証金 | 入居可能日 | 検討リスト | 詳細 |
|---|---|---|---|---|---|---|
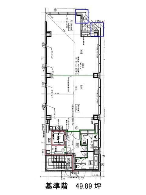
| 2 | 49.89坪 | 1,347,030円/月(27,000円/坪) | 1,224万円 | 2026年2月上旬 |
…新着物件
アクセス
Nan-o Bldg.新虎の物件情報
Nan-o Bldg.新虎(港区西新橋)は内幸町駅(A3番出口)から徒歩6分の賃貸オフィスです。2021年竣工の物件ということもあり、建物自体がとても綺麗です。外観は全体的に黒とグレーの配色に、前面のガラス張りがとてもスタイリッシュな印象があります。エントランスホールやエレベーターホールは清潔感があり、高級感を感じられます。また周辺にはコンビニや飲食店などが複数あるため、ランチも楽しめるでしょう。ビル内にはOAフロアが備えられており、トイレは男女別となっております。セキュリティは機械警備を導入しており、耐震性も新耐震基準であるため、安心です。Nan-o Bldg.新虎は内幸町駅(A3番出口)の他に虎ノ門ヒルズ駅(B2番出口)徒歩6分、虎ノ門駅(9番出口)徒歩8分で利用も可能です。

