5階は現在募集がありません
1フロア募集区画あり

Nan-o Bldg.新虎 5階

前の写真 次の写真

物件概要

物件番号

131-00036-54

物件名

Nan-o Bldg.新虎

所在地

面積

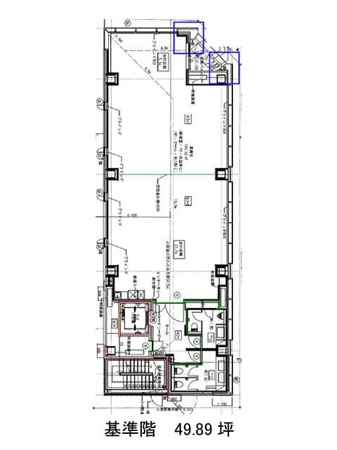
49.89坪

賃料(共益費含)


入居日

募集終了

保証金

礼金

更新料

償却費

竣工

2021年12月

構造

S造

規模

地上8階

トイレ

男女別

空調

個別空調

エレベーター

セキュリティ

駐車場

耐震

新耐震基準

基準階天井高

2700mm

空室延床面積

49.89坪

最寄駅

情報更新日

2025/11/17

Nan-o Bldg.新虎のテナント募集中区画

階数 面積 賃料(共益費含む) 保証金 入居可能日 検討リスト 詳細
2 49.89坪 1,347,030円/月(27,000円/坪) 1,224万円 2026年2月上旬
…新着物件

アクセス

Nan-o Bldg.新虎の物件情報

Nan-o Bldg.新虎(港区西新橋)は内幸町駅(A3番出口)から徒歩6分の賃貸オフィスです。
2021年竣工の物件ということもあり、建物自体がとても綺麗です。外観は全体的に黒とグレーの配色に、前面のガラス張りがとてもスタイリッシュな印象があります。エントランスホールやエレベーターホールは清潔感があり、高級感を感じられます。また周辺にはコンビニや飲食店などが複数あるため、ランチも楽しめるでしょう。ビル内にはOAフロアが備えられており、トイレは男女別となっております。セキュリティは機械警備を導入しており、耐震性も新耐震基準であるため、安心です。
Nan-o Bldg.新虎は内幸町駅(A3番出口)の他に虎ノ門ヒルズ駅(B2番出口)徒歩6分、虎ノ門駅(9番出口)徒歩8分で利用も可能です。

近隣のエリア・駅から探す