2階は現在募集がありません
第5横芝ビル 2階
物件概要
第5横芝ビルのテナント募集中区画
現在、空室がございません。
アクセス
第5横芝ビルの物件情報
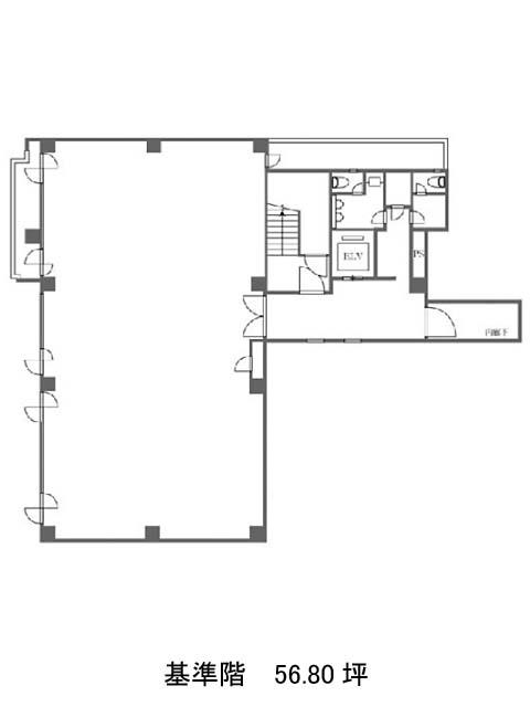
第5横芝ビル(港区西麻布)は六本木駅(1c番出口)から徒歩9分の賃貸オフィスです。1991年竣工。赤茶色のレンガ調のタイルを用いた外観で落ち着いた雰囲気がある建物です。そして基準階は約56坪あり、室内は長方形の整形オフィスのため、効率の良いレイアウトが組めそうです。ビル内には個別空調が完備されており、トイレは男女別となっております。駐車場も完備してあるため、社用車を使う場合も便利です。エレベーターは1基設置。セキュリティは機械警備を導入していて、耐震性も新耐震基準であるため、安心です。周辺にはコンビニや飲食店、郵便局、銀行などが複数あるためとても利便性が高いです。第5横芝ビルは六本木駅(1c番出口)の他に乃木坂駅(5番出口)徒歩10分、広尾駅(4番出口)徒歩12分で利用も可能です。

