8階は現在募集がありません
第2虎ノ門ビル 8階
物件概要
第2虎ノ門ビルのテナント募集中区画
現在、空室がございません。
アクセス
第2虎ノ門ビルの物件情報
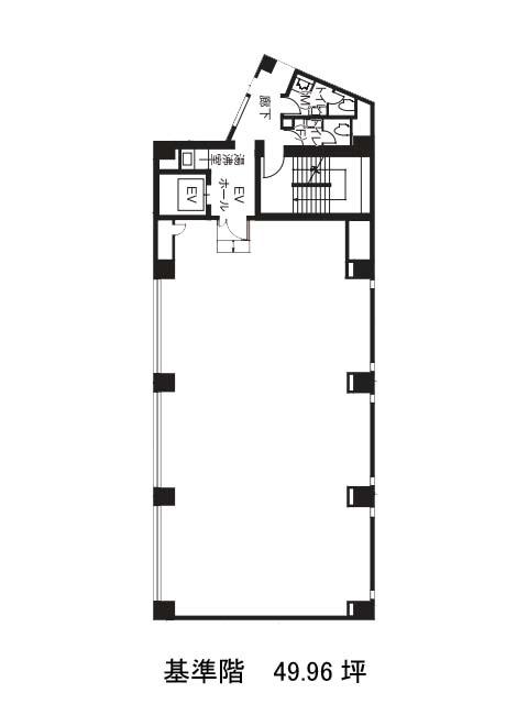
第二虎ノ門ビル(港区赤坂)は溜池山王駅(9番出口)から徒歩2分の賃貸オフィスです。外観は全体的にグレーと茶色の2色に分かれており、品格のあるデザインなっております。エントランスホールやエレベーターホールは明るく落ち着いた空間となっております。室内はレイアウトのしやすい無柱の整形オフィスです。また周辺にはコンビニや飲食店、郵便局などが複数あるためとても利便性が高いです。ビル内にはOAフロアが備えられており、トイレは男女別となっております。セキュリティは機械警備を導入しており、2013年に耐震補強工事も行われているため、安心です。第二虎ノ門ビルは溜池山王駅(9番出口)の他に国会議事堂前駅(5番出口)徒歩6分、六本木一丁目駅(3番出口)徒歩8分で利用も可能です。

