2階は現在募集がありません

U&M赤坂ビル 2階

前の写真 次の写真

物件概要

物件番号

133-00545-41

物件名

U&M赤坂ビル

所在地

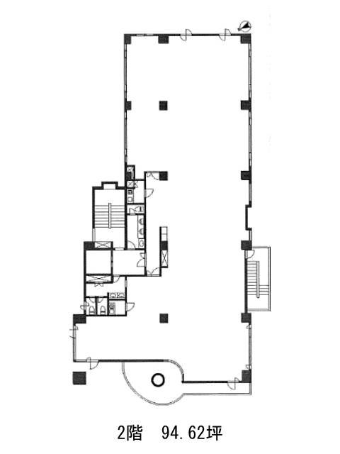
面積

94.62坪

賃料(共益費含)


入居日

募集終了

保証金

礼金

更新料

償却費

竣工

1989年8月

構造

RC

規模

地上3階/地下1階

トイレ

男女別

空調

個別空調

エレベーター

セキュリティ

駐車場

耐震

新耐震基準

基準階天井高

空室延床面積

最寄駅

情報更新日

2024/09/20

U&M赤坂ビルのテナント募集中区画

現在、空室がございません。

アクセス

U&M赤坂ビルの物件情報

U&M赤坂ビル(港区赤坂)は青山一丁目駅(4番出口)から徒歩9分の賃貸オフィスです。
U&M赤坂ビルは青山一丁目駅(4番出口)の他に乃木坂駅(1番出口)徒歩10分、赤坂駅(7番出口)徒歩11分で利用も可能です。

近隣のエリア・駅から探す