地下1階は現在募集がありません
UIW12乃木坂 地下1階
物件概要
UIW12乃木坂のテナント募集中区画
現在、空室がございません。
アクセス
UIW12乃木坂の物件情報
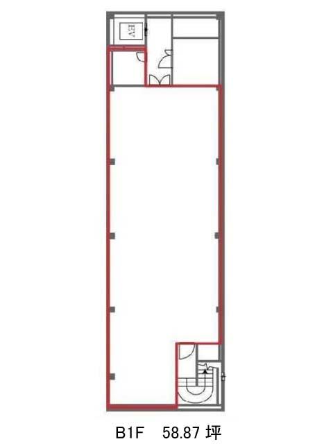
UIW12乃木坂(港区赤坂)は乃木坂駅(1番出口)から徒歩7分の賃貸オフィスです。1985年竣工、地上3階地下1階建のビルです。新耐震基準に適合しています。1階にコンビニが入りご案内時にわかりやすいでしょう。屈折型の外階段があり特徴的な外観をしています。間取りは細長い長方形で壁面が多く、オフィス家具の配置がしやすいでしょう。ケーブルを床下に配線できるOAフロアを導入しています。稲荷坂の突き当りに立地し、周辺は分譲マンション・港区赤坂小学校等があり落ち着いた雰囲気の住宅街となります。UIW12乃木坂は乃木坂駅(1番出口)の他に赤坂駅(7番出口)徒歩8分、青山一丁目駅(4番出口)徒歩10分で利用も可能です。

