9階は現在募集がありません
1フロア募集区画あり

草月会館 9階

前の写真 次の写真

物件概要

物件番号

133-00663-40

物件名

草月会館

所在地

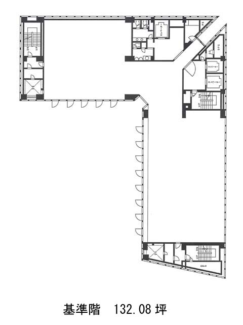
面積

132.09坪

賃料(共益費含)


入居日

募集終了

保証金

礼金

更新料

償却費

竣工

1977年12月

構造

SRC

規模

地上9階/地下1階

トイレ

男女別

空調

セントラル

エレベーター

セキュリティ

駐車場

耐震

耐震補強済み

基準階天井高

空室延床面積

132.09坪

最寄駅

情報更新日

2025/12/17

草月会館のテナント募集中区画

階数 面積 賃料(共益費含む) 保証金 入居可能日 検討リスト 詳細
8 132.09坪 応相談(応相談) 応相談 2026年2月上旬
…新着物件

アクセス

草月会館の物件情報

草月会館(港区赤坂)は青山一丁目駅(4番出口)から徒歩6分の賃貸オフィスです。
草月会館は青山一丁目駅(4番出口)の他に赤坂見附駅(出口4)徒歩11分、永田町駅(7番出口)徒歩12分で利用も可能です。

近隣のエリア・駅から探す