T-FRONTビルのテナント募集中区画
| 階数 | 面積 | 賃料(共益費含む) | 保証金 | 入居可能日 | 検討リスト | 詳細 |
|---|---|---|---|---|---|---|
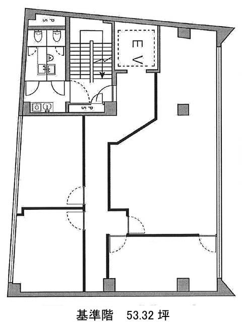
| 5 | 53.32坪 | 1,265,000円/月(23,725円/坪) | 200万円 | 即 |
…新着物件
アクセス
T-FRONTビルの物件情報
T-FRONTビル(港区赤坂)は溜池山王駅(9番出口)から徒歩3分の賃貸オフィスです。1974年竣工、地上8階建のビルです。低層階は白い壁面、高層階はミラーガラス張りの特徴的な外観をしております。1階にはテナントが入っており、大きな看板が目印となるでしょう。EV・個別空調・男女別トイレといった設備仕様で、セキュリティとして機械警備が導入されています。床はOAフロアを採用し、配線の自由度が高まるでしょう。前面の都道405号は道幅が広く、開放感が期待できます。周辺は飲食店が充実しており、ランチにご利用頂けるでしょう。T-FRONTビルは溜池山王駅(9番出口)の他に虎ノ門駅(3番出口)徒歩7分、国会議事堂前駅(3番出口)徒歩7分で利用も可能です。

