6階は現在募集がありません
1フロア募集区画あり

T-FRONTビル 6階

前の写真 次の写真

物件概要

物件番号

133-00921-50

物件名

T-FRONTビル

所在地

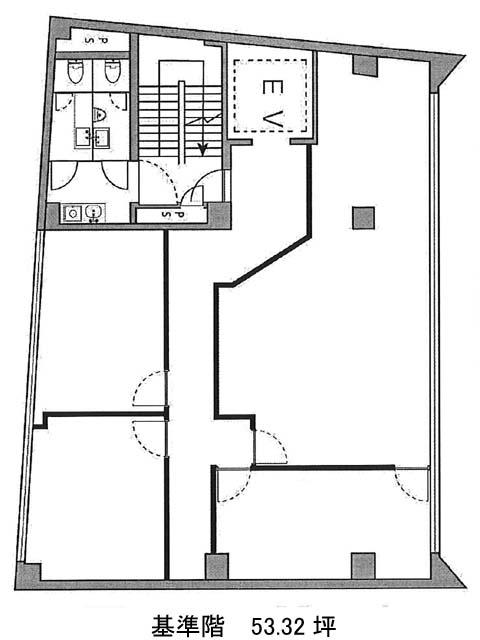
面積

53.32坪

賃料(共益費含)


入居日

募集終了

保証金

礼金

更新料

償却費

竣工

1974年9月

構造

RC

規模

地上8階

トイレ

男女別

空調

個別空調

エレベーター

セキュリティ

駐車場

耐震

旧耐震基準

基準階天井高

2400-2700mm

空室延床面積

53.32坪

最寄駅

情報更新日

2025/08/25

T-FRONTビルのテナント募集中区画

階数 面積 賃料(共益費含む) 保証金 入居可能日 検討リスト 詳細
5 53.32坪 1,265,000円/月(23,725円/坪) 200万円
…新着物件

アクセス

T-FRONTビルの物件情報

T-FRONTビル(港区赤坂)は溜池山王駅(9番出口)から徒歩3分の賃貸オフィスです。
1974年竣工、地上8階建のビルです。低層階は白い壁面、高層階はミラーガラス張りの特徴的な外観をしております。1階にはテナントが入っており、大きな看板が目印となるでしょう。EV・個別空調・男女別トイレといった設備仕様で、セキュリティとして機械警備が導入されています。床はOAフロアを採用し、配線の自由度が高まるでしょう。前面の都道405号は道幅が広く、開放感が期待できます。周辺は飲食店が充実しており、ランチにご利用頂けるでしょう。
T-FRONTビルは溜池山王駅(9番出口)の他に虎ノ門駅(3番出口)徒歩7分、国会議事堂前駅(3番出口)徒歩7分で利用も可能です。

近隣のエリア・駅から探す