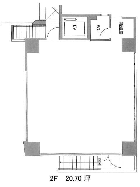
2階は現在募集がありません
赤坂甲陽ビル 2階
物件概要
赤坂甲陽ビルのテナント募集中区画
現在、空室がございません。
アクセス
赤坂甲陽ビルの物件情報
赤坂甲陽ビル(港区赤坂)は赤坂駅(7番出口)から徒歩5分の賃貸オフィスです。赤坂甲陽ビルは赤坂駅(7番出口)の他に乃木坂駅(1番出口)徒歩9分、六本木駅(8番出口)徒歩9分で利用も可能です。

