2階 201は現在募集がありません
東新橋ビル 2階 201
物件概要
東新橋ビルのテナント募集中区画
現在、空室がございません。
アクセス
東新橋ビルの物件情報
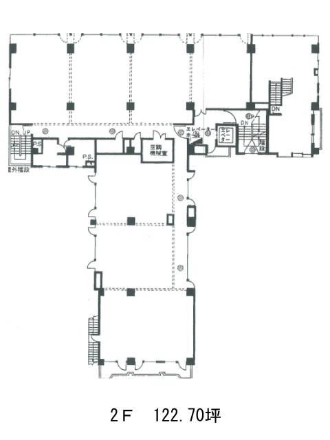
東新橋ビル(港区東新橋)は汐留駅(8番出口)から徒歩6分の賃貸オフィスです。SRC造、地上10階地下1階建のビルです。T字型のフロアは共用部が1箇所に集中し使い勝手がよいでしょう。共用部は明るく清潔感があり、管理状態の良さが伺えます。EV1基・駐車場・駐輪場・執務室外の男女別トイレ・タイルカーペット・個別空調といった設備仕様です。貸室は事務所の他店舗としてのご利用も可能で、人通りが多いエリアならではのビジネスチャンスが広がるでしょう。周辺はオフィスビルが多く建ち並ぶエリアです。東新橋ビルは汐留駅(8番出口)の他に新橋駅(A1番出口)徒歩6分、御成門駅(A4番出口)徒歩7分で利用も可能です。

