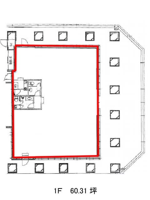
1階は現在募集がありません
パラッツォアステック 1階
物件概要
パラッツォアステックのテナント募集中区画
現在、空室がございません。
アクセス
パラッツォアステックの物件情報
パラッツォアステック(港区東新橋)は汐留駅(8番出口)から徒歩5分の賃貸オフィスです。地上10階建てですので、上層階からの眺望は良好です。アーチ状のエントランスの上にレンガ色の外壁、白い最上部の3層に分かれており、とてもデザイン性の高い外観です。エントランスホールは清潔感があり、西洋建築を思わせる明るく華やかな空間となっております。また周辺にはコンビニや飲食店などが複数あるため、ランチも楽しめるでしょう。ビル内にはOAフロアが備えられており、トイレは男女別となっております。駐車場もあるため、社用車を使う場合も便利です。セキュリティ面は機械警備を導入しています。パラッツォアステックは汐留駅(8番出口)の他に新橋駅(A1番出口)徒歩7分、大門駅(B1番出口)徒歩9分で利用も可能です。

