4階 4Lは現在募集がありません
汐留エッジ 4階 4L
物件概要
汐留エッジのテナント募集中区画
現在、空室がございません。
アクセス
汐留エッジの物件情報
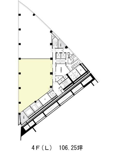
汐留エッジ(港区東新橋)は汐留駅(5番出口)から徒歩2分の賃貸オフィスです。2002年竣工の物件ということもあり、建物自体が比較的綺麗です。シックな配色に強調された横ラインが印象的な外観です。上から見ると3角形の特徴的な形をしていますが、室内は無柱空間となっており、レイアウトに配慮された間取りです。エントランスホールやエレベーターホールはとても落ち着いた空間となっております。ビル内のトイレは男女別となっているところもあります。セキュリティ面は、機械警備を導入しています。駐車場もあるため、社用車を使う場合も便利です。また周辺にはコンビニや飲食店などが複数あるため、ランチも楽しめるでしょう。汐留エッジは汐留駅(5番出口)の他に新橋駅(1D番出口)徒歩4分、築地市場駅(A3番出口)徒歩8分で利用も可能です。

