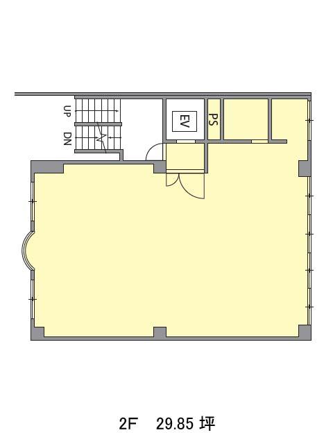
2階は現在募集がありません
南青山グリーンランドビルⅢ 2階
物件概要
南青山グリーンランドビルⅢのテナント募集中区画
現在、空室がございません。
アクセス
南青山グリーンランドビルⅢの物件情報
南青山グリーンランドビルⅢ(港区南青山)は表参道駅(B3番出口)から徒歩11分の賃貸オフィスです。

