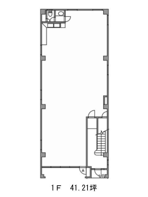
1階は現在募集がありません
岩井レースビル (旧:ウチダビル) 1階
物件概要
岩井レースビル (旧:ウチダビル)のテナント募集中区画
現在、空室がございません。
アクセス
岩井レースビル (旧:ウチダビル)の物件情報
岩井レースビル (旧:ウチダビル)(港区南青山)は表参道駅(B1番出口)から徒歩10分の賃貸オフィスです。1996年竣工、地上4階建ての鉄骨造です。外観は全体的にレンガ調の色合いをしており、デザイン性が高いです。周辺のビルと比べると一際目を引く印象がありますので、視認性が抜群です。周辺にはコンビニや飲食店などがあるため、ランチも楽しめるでしょう。室内は、基準階が約40坪あり、ほぼ長方形で余計な柱がほぼ無いため、比較的レイアウトは組みやすいでしょう。個別空調、耐震性は新耐震基準であるため、安心できます。

