地下1階は現在募集がありません
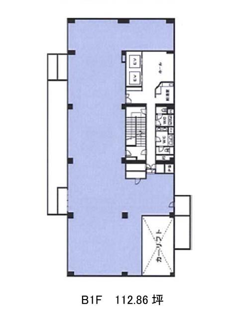
浜松町TSビル 地下1階
物件概要
浜松町TSビルのテナント募集中区画
現在、空室がございません。
アクセス
浜松町TSビルの物件情報
浜松町TSビル(港区浜松町)は浜松町駅(南口1)から徒歩4分の賃貸オフィスです。浜松町駅に程近い角地の物件で、周辺でも一際存在感のあるオフィスビル。外観はブラウン調で、エントランス回りは御影石、その他はタイル張りで構成されており、異素材の組み合わせがお洒落です。エントランスやエレベーターホールといった共有部分もしっかりとした造りで堅実な印象を受けます。エレベーターは2基設置済み。1フロアは最大120坪強です。OAフロアは相談。男女別トイレと湯沸室は全て室外に設置されているため、執務室とのメリハリが保たれています。また、機械式駐車場併設です。浜松町TSビルは浜松町駅(南口1)の他に大門駅(B5番出口)徒歩5分、モノレール浜松町駅(中央口)徒歩5分で利用も可能です。

