7階は現在募集がありません
RBM浜松町ビル 7階
物件概要
RBM浜松町ビルのテナント募集中区画
現在、空室がございません。
アクセス
RBM浜松町ビルの物件情報
RBM浜松町ビル(港区浜松町)は大門駅(A2番出口)から徒歩1分の賃貸オフィスです。大門交差点に面した角地の物件で、周辺でも一際存在感のある物件です。ビル名看板が屋上に設置されていますので、ひと目で認識できるでしょう。地上9階建て。外観はシンプルな白のタイル張りです。
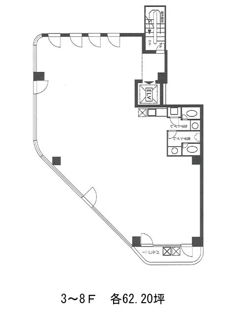
基準フロアは62.20坪。執務室は窓面が多く採光性に優れ、無柱空間であることも相まって実際のサイズ以上に広々と感じます。男女別トイレと給湯設備は室内にまとめて確保済み。1フロア1テナント仕様のビルですので、各階の独立性が保たれています。
当ビルは大門駅A2出入口に直結しており、アクセス環境の良さも大きな魅力です。RBM浜松町ビルは大門駅(A2番出口)の他に浜松町駅(北口)徒歩4分、モノレール浜松町駅(中央口)徒歩5分で利用も可能です。

