6階は現在募集がありません
浜松町NHビル 6階
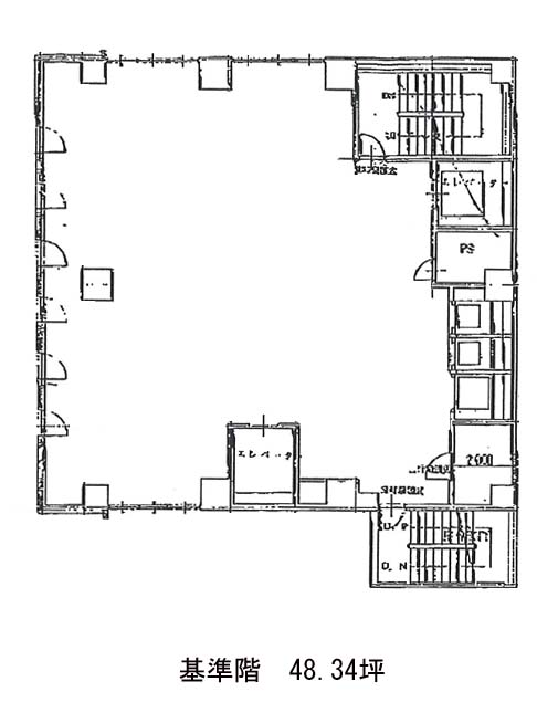
物件概要
浜松町NHビルのテナント募集中区画
現在、空室がございません。
アクセス
浜松町NHビルの物件情報
浜松町NHビル(港区浜松町)は大門駅(A2番出口)から徒歩2分の賃貸オフィスです。1991年竣工、地上8階地下1階SRC造のビルです。明るいブラウンの外壁で、エントランス周りは天然石を使用し高級感があります。貸室は三面採光で、明るい室内となるでしょう。EV・機械警備・個別空調・OAフロア・男女別トイレ・非常階段2箇所といった設備仕様がそろいます。内装は白を基調とした明るい設えになっております。1階に飲食店が入り、ランチ等にご利用頂けるでしょう。周辺にもコンビニや飲食店が充実しています。浜松町NHビルは大門駅(A2番出口)の他に浜松町駅(北口)徒歩4分、モノレール浜松町駅(中央口)徒歩5分で利用も可能です。

