6階は現在募集がありません
JEI浜松町 6階
物件概要
JEI浜松町のテナント募集中区画
現在、空室がございません。
アクセス
JEI浜松町の物件情報
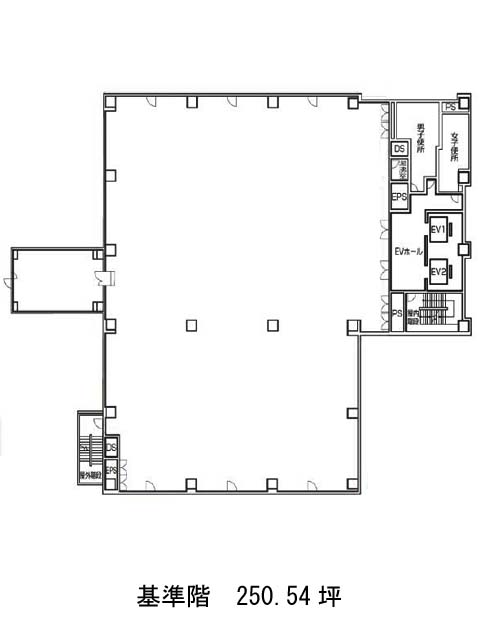
JEI浜松町(港区浜松町)は大門駅(A1番出口)から徒歩3分の賃貸オフィスです。1991年竣工、地上8階地下1階SRC造のビルです。白い壁面で、堂々たる風格をしています。共用部は御影石を使用し、明るく高級感のある内装をしています。EV2基・機械式駐車場・個別空調・OAフロア・執務室外の男女別トイレといった設備仕様をしています。ワンフロア1テナントで、プライバシー性が高いでしょう。250坪の大規模な貸室が揃います。周辺は中高層階のオフィスビルが建ち並ぶエリアです。ビジネスパーソン向けの飲食店が充実しております。JEI浜松町は大門駅(A1番出口)の他に浜松町駅(南口1)徒歩5分、モノレール浜松町駅(中央口)徒歩5分で利用も可能です。

