5階は現在募集がありません
吉和田ビル 5階
物件概要
吉和田ビルのテナント募集中区画
現在、空室がございません。
アクセス
吉和田ビルの物件情報
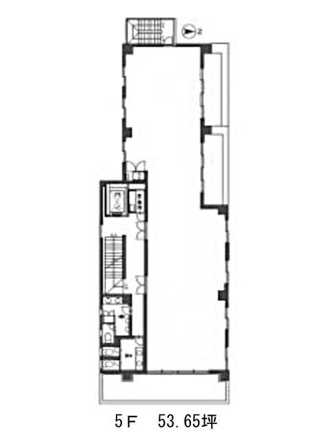
吉和田ビル(港区浜松町)は大門駅(B1番出口)から徒歩5分の賃貸オフィスです。1992年竣工の外観はグレーを基調とした色合いの、シンプルなデザインのビルです。周辺にはコンビニや飲食店、郵便局があり、利便性が高いです。ビル内にはOAフロアが備えられており、個別空調完備、トイレも男女別となっているため設備面も充実しております。セキュリティは機械警備を導入していて、耐震性も新耐震基準であるため、安心です。室内がほぼ長方形の形をしているため、比較的レイアウトは組みやすいでしょう。吉和田ビルは大門駅(B1番出口)の他に浜松町駅(北口)徒歩5分、モノレール浜松町駅(中央口)徒歩6分で利用も可能です。

