2階は現在募集がありません
NBC浜松町ビル 2階
物件概要
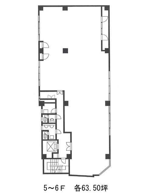
NBC浜松町ビルのテナント募集中区画
現在、空室がございません。
アクセス
NBC浜松町ビルの物件情報
NBC浜松町ビル(港区浜松町)は浜松町駅(南口1)から徒歩3分の賃貸オフィスです。線路沿いの角地に立地しています。外観は白いタイル張りで、角を面取って設けられたエントランスが特徴的です。ビル内にはOAフロア、個別空調が完備されていて、トイレも男女別となっているため、設備面は充実しております。エレベーターは1基設置されており、駐車場も完備してあるため、車の利用もしやすい環境となっております。セキュリティは機械警備を導入していて、耐震性も新耐震基準であるため、安心です。1階ではコンビニが営業しており、周辺には飲食店やあ郵便局などが複数あるためとても利便性が高いです。NBC浜松町ビルは浜松町駅(南口1)の他にモノレール浜松町駅(中央口)徒歩3分、大門駅(B2番出口)徒歩4分で利用も可能です。

