7階は現在募集がありません
オリックス浜松町ビル 7階
物件概要
オリックス浜松町ビルのテナント募集中区画
現在、空室がございません。
アクセス
オリックス浜松町ビルの物件情報
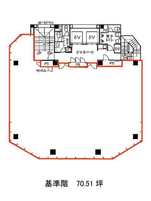
オリックス浜松町ビル(港区浜松町)は大門駅(B1番出口)から徒歩2分の賃貸オフィスです。2008年竣工、地上10階建てのガラス張りで清潔感のある物件です。周辺にはコンビニや飲食店があり、ランチも楽しめるでしょう。ビル内はOAフロア、個別空調も完備されていて、トイレも男女別となっているため設備面は充実しております。エレベーターは2基設置されており、駐車場も完備してあるため、社用車を使う場合も便利です。そして基準階は約70坪あり、室内はほぼ整形のため、比較的に効率の良いレイアウトが組めそうです。オリックス浜松町ビルは大門駅(B1番出口)の他に浜松町駅(北口)徒歩3分、モノレール浜松町駅(中央口)徒歩4分で利用も可能です。

