5階は現在募集がありません
森ビル 5階
物件概要
森ビルのテナント募集中区画
現在、空室がございません。
アクセス
森ビルの物件情報
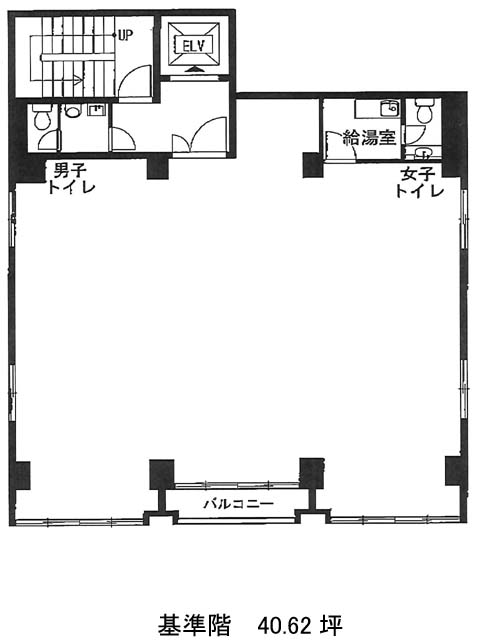
森ビル(港区浜松町)は大門駅(A2番出口)から徒歩2分の賃貸オフィスです。外観は白を基調とした、とてもシンプルなデザインとなっております。ビル周辺にはコンビニや飲食店、銀行などがあるためとても利便性が高いです。ビル内にはOAフロアが備えられている階があり、個別空調完備、トイレは男女別、エレベーターは1基設置されており、設備面が充実しております。セキュリティは機械警備を導入しているため、安心です。基準階は約40坪あり、室内がほぼ長方形の整形オフィスのため、効率の良いレイアウトが組めそうです。森ビルは大門駅(A2番出口)の他に浜松町駅(北口)徒歩3分、モノレール浜松町駅(中央口)徒歩5分で利用も可能です。

