3階は現在募集がありません
佐藤ビル 3階
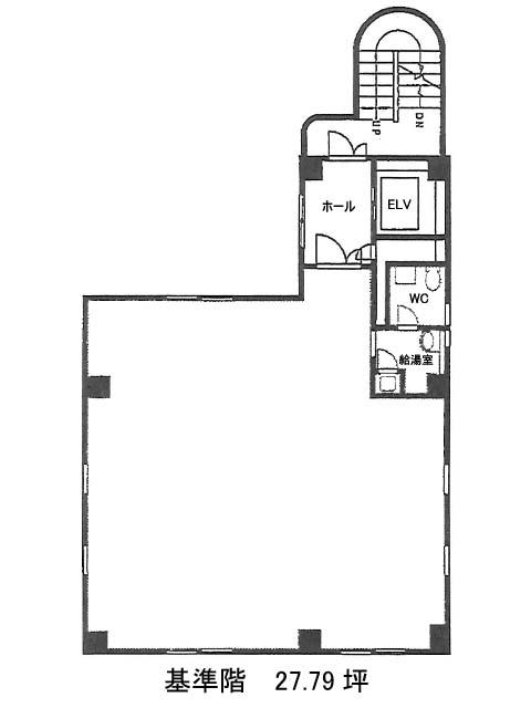
物件概要
佐藤ビルのテナント募集中区画
現在、空室がございません。
アクセス
佐藤ビルの物件情報
佐藤ビル(港区浜松町)は大門駅(A2番出口)から徒歩4分の賃貸オフィスです。佐藤ビルは大門駅(A2番出口)の他に浜松町駅(北口)徒歩4分、モノレール浜松町駅(中央口)徒歩5分で利用も可能です。

