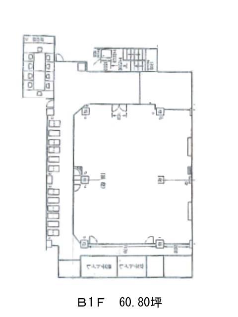
地下1階は現在募集がありません
A.Aビル(AAビル) 地下1階
物件概要
A.Aビル(AAビル)のテナント募集中区画
現在、空室がございません。
アクセス
A.Aビル(AAビル)の物件情報
A.Aビル(AAビル)(港区北青山)は外苑前駅(3番出口)から徒歩3分の賃貸オフィスです。外観は全体的に明るく、シンプルなデザインとなっております。エントランスホールやエレベーターホールは清潔感があり、落ち着いた空間となっております。また周辺には、コンビニや飲食店、郵便局などがあるため、利便性が高いです。ビル内のトイレは男女別となっており、セキュリティは機械警備を導入しております。耐震性も新耐震基準であるため、安心です。駐車場を完備してあるため、社用車を使う場合も便利です。A.Aビル(AAビル)は外苑前駅(3番出口)の他に青山一丁目駅(0番出口)徒歩12分、表参道駅(A3番出口)徒歩12分で利用も可能です。

