5階 5Aは現在募集がありません
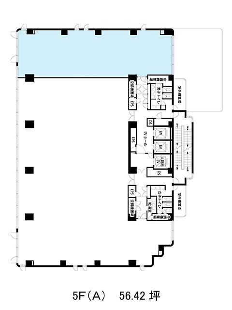
BPRプレイス神谷町 5階 5A
物件概要
BPRプレイス神谷町のテナント募集中区画
現在、空室がございません。
アクセス
BPRプレイス神谷町の物件情報
BPRプレイス神谷町(港区麻布台)は神谷町駅(1番出口)から徒歩4分の賃貸オフィスです。1989年竣工。2003年にリニューアル工事を実施しており、比較的メンテナンスが行き届いております。基準階は約206坪あり、室内は長方形の整形オフィスのため、効率の良いレイアウトが組めそうです。貸室内はOAフロア、個別空調完備、トイレも男女別となっているため設備面は充実しております。駐車場も併設しており、車の利用もしやすい環境となっております。またセキュリティは機械警備と有人警備の両方を導入していて、耐震性も新耐震基準であるため、様々な面において安心を感じられる建物となっております。周辺にはコンビニや飲食店、郵便局などが複数あるためとても利便性が高いです。BPRプレイス神谷町は神谷町駅(1番出口)の他に赤羽橋駅(赤羽橋口)徒歩10分、虎ノ門ヒルズ駅(A1番出口)徒歩11分で利用も可能です。

