3階 301は現在募集がありません
パシフィックキャピタルプラザ 3階 301
物件概要
パシフィックキャピタルプラザのテナント募集中区画
現在、空室がございません。
アクセス
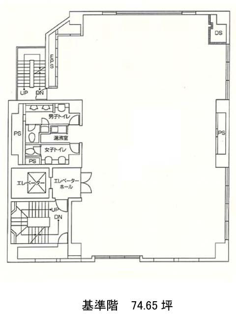
パシフィックキャピタルプラザの物件情報
パシフィックキャピタルプラザ(港区六本木)は六本木駅(6番出口)から徒歩2分の賃貸オフィスです。1992年竣工、SRC造地上8階地下1階建のビルです。外壁は、ガラス窓の配置が工夫されデザイン性の高い外観をしています。2011年に空調・水まわりのリニューアル済で、更に使い勝手が良いでしょう。内装は一部木目調で、温かみのあるデザインをしています。EV1基・駐車場・個別空調・機械警備・OAフロア・貸室外の男女別トイレといった充実の設備仕様。六本木通り沿いに建ち、周辺もオフィスビルが立ち並ぶエリアとなります。パシフィックキャピタルプラザは六本木駅(6番出口)の他に六本木一丁目駅(出口)徒歩7分、乃木坂駅(3番出口)徒歩10分で利用も可能です。

