9階は現在募集がありません
1フロア募集区画あり

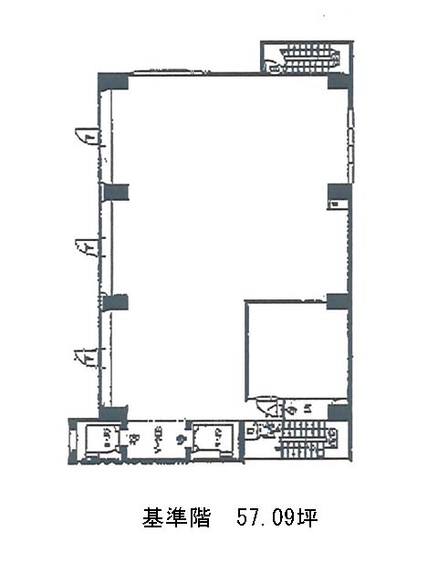
六本木グリーンビル 9階

前の写真 次の写真

物件概要

物件番号

147-00467-100

物件名

六本木グリーンビル

所在地

面積

57.09坪

賃料(共益費含)


入居日

募集終了

保証金

礼金

更新料

償却費

竣工

2008年7月

構造

規模

地上10階/地下1階

トイレ

男女別

空調

エレベーター

セキュリティ

駐車場

耐震

新耐震基準

基準階天井高

2650mm

空室延床面積

57.09坪

最寄駅

情報更新日

2025/10/22

六本木グリーンビルのテナント募集中区画

階数 面積 賃料(共益費含む) 保証金 入居可能日 検討リスト 詳細
5 57.09坪 応相談(応相談) 応相談
…新着物件

アクセス

六本木グリーンビルの物件情報

六本木グリーンビル(港区六本木)は六本木駅(3番出口)から徒歩2分の賃貸オフィスです。
六本木グリーンビルは六本木駅(3番出口)の他に六本木一丁目駅(出口)徒歩10分、乃木坂駅(3番出口)徒歩11分で利用も可能です。

近隣のエリア・駅から探す