六本木グリーンビル 5階
物件概要
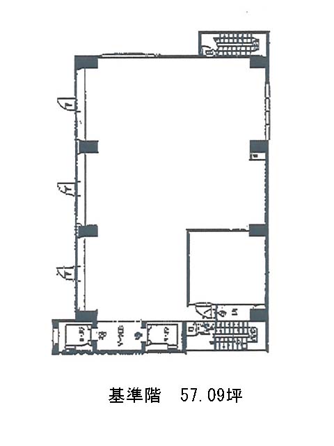
六本木グリーンビルのテナント募集中区画
| 階数 | 面積 | 賃料(共益費含む) | 保証金 | 入居可能日 | 検討リスト | 詳細 |
|---|---|---|---|---|---|---|
| 5 | 57.09坪 | 応相談(応相談) | 応相談 | 即 |
…新着物件
アクセス
六本木グリーンビルの物件情報
六本木グリーンビル(港区六本木)は六本木駅(3番出口)から徒歩2分の賃貸オフィスです。六本木グリーンビルは六本木駅(3番出口)の他に六本木一丁目駅(出口)徒歩10分、乃木坂駅(3番出口)徒歩11分で利用も可能です。

