三恵51ビルのテナント募集中区画
| 階数 | 面積 | 賃料(共益費含む) | 保証金 | 入居可能日 | 検討リスト | 詳細 |
|---|---|---|---|---|---|---|
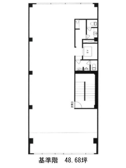
| 3 | 48.68坪 | 1,312,300円/月(26,957円/坪) | 954万円 | 即 |
…新着物件
アクセス
三恵51ビルの物件情報
三恵51ビル(渋谷区恵比寿)は恵比寿駅(東口)から徒歩3分の賃貸オフィスです。地上5階建、1979年竣工の建物です。グレーの外壁で重厚感のある外観をしています。1階に美容室が入り、目印となるでしょう。基準階面積は48.68坪。事務所の他店舗(飲食不可)としての利用が可能です。間取りは長方形の無柱空間で配置がしやすいでしょう。共用部が一箇所に集中し、効率よくご利用頂けます。EV1基・個別空調・男女別トイレがあり、床はOAフロアを導入しています。1998年にリニューアルされ、清潔感のある内装をしています。三恵51ビルは恵比寿駅(東口)の他に代官山駅(東口)徒歩13分で利用も可能です。

