いちご恵比寿西ビルのテナント募集中区画
| 階数 | 面積 | 賃料(共益費含む) | 保証金 | 入居可能日 | 検討リスト | 詳細 |
|---|---|---|---|---|---|---|
| 9 | 23.61坪 | 応相談(応相談) | 応相談 | 即 |
…新着物件
アクセス
いちご恵比寿西ビルの物件情報
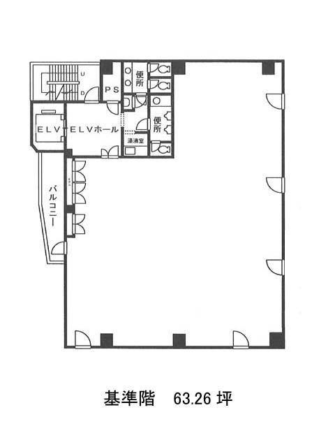
いちご恵比寿西ビル(渋谷区恵比寿西)は恵比寿駅(2番出口)から徒歩5分の賃貸オフィスです。1992年竣工、地上9階建て、線路沿いから一本入った通りに立地します。吹き抜けのエントランスはガラス天井から光が降り注ぐ明るい空間です。奥のホールには不停止機能付きエレベーターが1基設置されています。室内はレイアウトのしやすい無柱空間となっています。男女別トイレや給湯室等の共用設備は室外に置かれていますので、専有スペースを有効に使用することが可能です。その他設備面は、個別空調、OAフロア、併設駐車場等が備えられています。周辺はオフィス街で、コンビニが近く、通り沿いに飲食店が充実していますので、ランチタイムのお店選びには困らないでしょう。いちご恵比寿西ビルは恵比寿駅(2番出口)の他に代官山駅(北口)徒歩8分、渋谷駅(新南口)徒歩10分で利用も可能です。

