地下1階は現在募集がありません
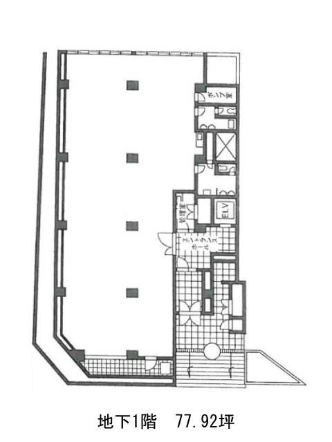
川上ビル 地下1階
物件概要
川上ビルのテナント募集中区画
現在、空室がございません。
アクセス
川上ビルの物件情報
川上ビル(渋谷区恵比寿西)は恵比寿駅(2番出口)から徒歩7分の賃貸オフィスです。当ビルは1991年竣工、SRC構造・地上7階地下1階建てで、新耐震基準に対応。外観はグレーのタイル張りで、清潔感と整った印象が際立ちます。シンプルながら品のある佇まいで、ビジネスシーンに自然と溶け込むデザインです。
貸室内には基本的に構造上の柱がしっかり配置されているため、レイアウトには工夫が必要ですが、言い換えれば区画分けやゾーニング設計には活かせる要素でもあります。
OAフロア、個別空調、光回線、男女別トイレといった基本設備が揃っており、実用性も申し分なし。
セキュリティは機械警備とオートロックを完備し、24時間利用にも対応。敷地内には駐車場も用意されており、幅広い働き方や業務スタイルに応じた活用が可能です。川上ビルは恵比寿駅(2番出口)の他に代官山駅(北口)徒歩8分、渋谷駅(新南口)徒歩10分で利用も可能です。

