渋原XROSS 5階

前の写真 次の写真

物件概要

物件番号

170-01083-5

物件名

渋原XROSS

所在地

面積

36.61坪

賃料(共益費含)

:応相談
応相談

入居日

2026年1月上旬

保証金

応相談

礼金

相談

更新料

なし

償却費

相談

竣工

2026年1月

構造

S造

規模

地上9階

トイレ

不明

空調

エレベーター

セキュリティ

駐車場

耐震

新耐震基準

基準階天井高

4450~mm

空室延床面積

323.28坪

最寄駅

情報更新日

2025/11/05

渋原XROSSのテナント募集中区画

階数 面積 賃料(共益費含む) 保証金 入居可能日 検討リスト 詳細
1-2F 77.77坪 応相談(応相談) 応相談 2026年1月上旬
3 40.62坪 応相談(応相談) 応相談 2026年1月上旬
4 28.21坪 応相談(応相談) 応相談 2026年1月上旬
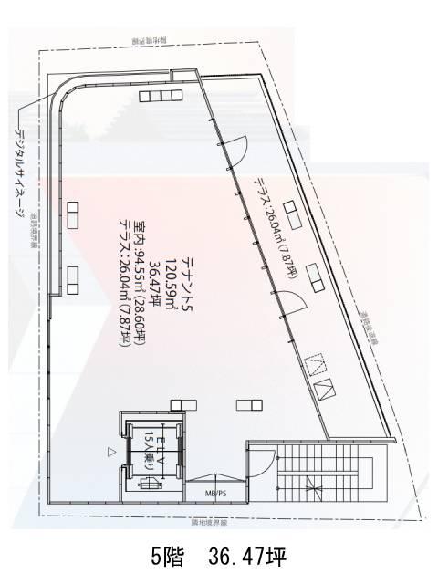
5 36.61坪 応相談(応相談) 応相談 2026年1月上旬
6 36.61坪 応相談(応相談) 応相談 2026年1月上旬
7 28.44坪 応相談(応相談) 応相談 2026年1月上旬
8 36.55坪 応相談(応相談) 応相談 2026年1月上旬
9 38.47坪 応相談(応相談) 応相談 2026年1月上旬
…新着物件

アクセス

渋原XROSSの物件情報

渋原XROSS(渋谷区神宮前)は明治神宮前駅(7番出口)から徒歩2分の賃貸オフィスです。
渋原XROSSは明治神宮前駅(7番出口)の他に原宿駅(東口)徒歩7分、渋谷駅(B1番出口)徒歩9分で利用も可能です。

近隣のエリア・駅から探す