神宮前太田ビル 5階
物件概要
物件番号
170-00248-20物件名
神宮前太田ビル所在地
- 東京都渋谷区神宮前5-7-20
- アクセスマップ
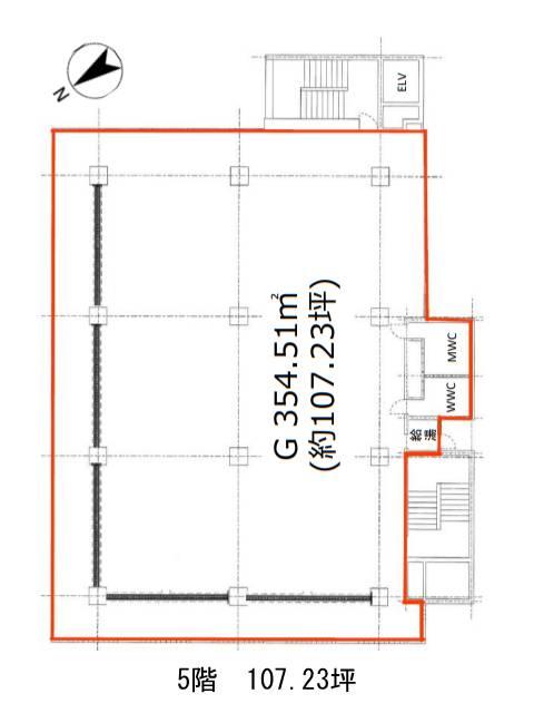
面積
107.23坪賃料(共益費含)
:応相談応相談
入居日
2026年3月上旬保証金
応相談礼金
なし更新料
なし償却費
なし竣工
1981年3月構造
SRC規模
地上8階トイレ
男女別空調
個別空調エレベーター
有セキュリティ
有駐車場
無耐震
耐震補強済み基準階天井高
2400mm空室延床面積
107.23坪情報更新日
2025/11/05神宮前太田ビルのテナント募集中区画
| 階数 | 面積 | 賃料(共益費含む) | 保証金 | 入居可能日 | 検討リスト | 詳細 |
|---|---|---|---|---|---|---|
| 5 | 107.23坪 | 応相談(応相談) | 応相談 | 2026年3月上旬 |
…新着物件
アクセス
神宮前太田ビルの物件情報
神宮前太田ビル(渋谷区神宮前)は表参道駅(A2番出口)から徒歩3分の賃貸オフィスです。神宮前太田ビルは表参道駅(A2番出口)の他に明治神宮前駅(出口1)徒歩6分、原宿駅(東口)徒歩9分で利用も可能です。

