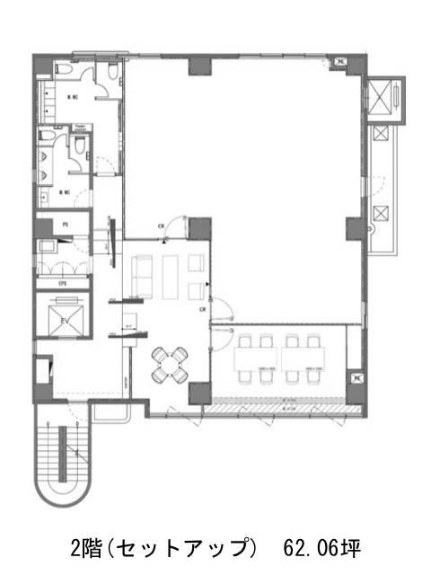
TBCビル 2階
物件概要
TBCビルのテナント募集中区画
| 階数 | 面積 | 賃料(共益費含む) | 保証金 | 入居可能日 | 検討リスト | 詳細 |
|---|---|---|---|---|---|---|
| 2 | 62.06坪 | 1,911,448円/月(30,800円/坪) | 応相談 | 2026年5月上旬 | ||
| 6 | 62.06坪 | 1,774,916円/月(28,600円/坪) | 応相談 | 相談 |
…新着物件
アクセス
TBCビルの物件情報
TBCビル(渋谷区東)は恵比寿駅(2番出口)から徒歩8分の賃貸オフィスです。JR線路沿い、渋谷駅と恵比寿駅の中間あたりに位置します。1984年竣工と少し前の物件ですが新耐震基準を満たし、2019年~2020年にエントランス・貸室のリニューアルを済ませていますので、経年は感じられません。地上7階建て、前面をミラーガラスで覆った外観は視認性が高いものです。エントランスはグレーを基調としたスタイリッシュなデザインで、エレベーターは1基設置されています。内装においても現代的で洗練された印象が感じられます。建物の正面である南西側はガラス張りに加え線路沿となっているため圧迫感がなく、採光・眺望共に良好でしょう。主な設備は、個別空調、OAフロア、男女別トイレ、駐車場等です。またセキュリティには機械警備を採用し、人とビジネスの安全を守ります。TBCビルは恵比寿駅(2番出口)の他に渋谷駅(新南口)徒歩8分、代官山駅(西口)徒歩10分で利用も可能です。

