OCCビル 1-4F
物件概要
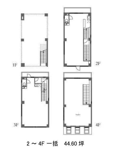
OCCビルのテナント募集中区画
| 階数 | 面積 | 賃料(共益費含む) | 保証金 | 入居可能日 | 検討リスト | 詳細 |
|---|---|---|---|---|---|---|
| 1-4F | 44.60坪 | 1,450,000円/月(32,511円/坪) | 790万円 | 即 |
…新着物件
アクセス
OCCビルの物件情報
OCCビル(渋谷区東)は恵比寿駅(2番出口)から徒歩5分の賃貸オフィスです。当ビルは2002年竣工、鉄骨造・地上4階建てで、新耐震基準に準拠した構造。外観は縦に大きく伸びるガラス面が印象的で、光を多く取り込むスマートなファサードが特徴的です。シルバーの外装とのコントラストも美しく、コンパクトながら洗練された存在感を放っています。
貸室は整形区画を中心とし、小規模ながらも実用性の高い構成。一棟貸しも対応可能で、複数フロアをまとめて利用したい企業やチームにも適しています。室内には柱が最小限に抑えられており、コンパクトながらレイアウトのしやすさが確保されています。
アクセスは恵比寿駅徒歩圏内の静かな立地。商業エリアと住宅街の境目に位置し、都心の利便性と落ち着いた執務環境をバランスよく両立できます。OCCビルは恵比寿駅(2番出口)の他に代官山駅(東口)徒歩10分、渋谷駅(新南口)徒歩11分で利用も可能です。

