2階は現在募集がありません
日本精鉱ビル 2階
物件概要
日本精鉱ビルのテナント募集中区画
現在、空室がございません。
アクセス
日本精鉱ビルの物件情報
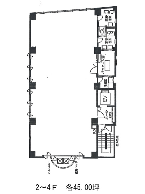
日本精鉱ビル(新宿区下宮比町)は飯田橋駅(C1番出口)から徒歩2分の賃貸オフィスです。外観はシンプルなタイル張り。大久保通りに面しています。
本物件は複数路線が利用できる飯田橋駅から至近に位置し、都内各所へのアクセスもスムーズな立地環境。駅周辺には飲食店やコンビニ、カフェなどが充実しており、ビル裏手には郵便局もあるため、日々の事務作業や外出時の用事も効率よくこなせます。基準階は45坪とコンパクトなサイズ感ながら、無柱の長方形レイアウトにより空間を無駄なく活用できる点が魅力。水回り(トイレ・給湯スペース)は貸室内に設置されており、占有性が高くプライバシーも確保しやすい設計です。日本精鉱ビルは飯田橋駅(C1番出口)の他に牛込神楽坂駅(A3番出口)徒歩9分、神楽坂駅(1番出口)徒歩11分で利用も可能です。

