的場ビル 2階 201
物件概要
物件番号
231-00069-2物件名
的場ビル所在地
- 東京都新宿区新小川町5-13
- アクセスマップ
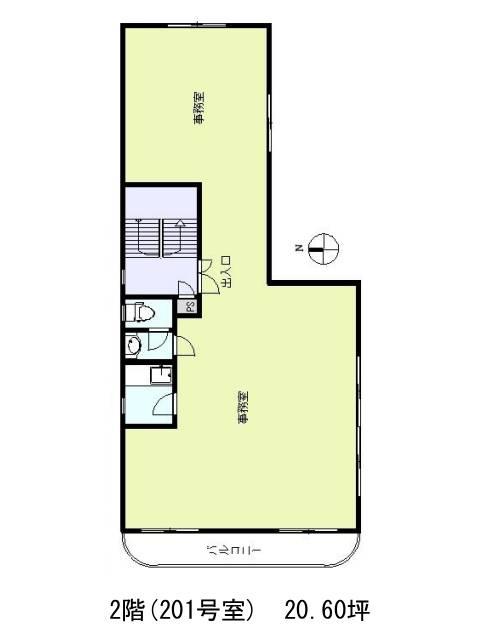
面積
20.60坪賃料(共益費含)
月額220,770円(10,717円/坪)
入居日
即保証金
782,800円礼金
1ケ月更新料
新1ケ月償却費
なし竣工
1995年6月構造
SRC規模
地上3階/地下1階トイレ
男女共用空調
エレベーター
有セキュリティ
駐車場
無耐震
新耐震基準基準階天井高
空室延床面積
20.60坪情報更新日
2025/09/29的場ビルのテナント募集中区画
| 階数 | 面積 | 賃料(共益費含む) | 保証金 | 入居可能日 | 検討リスト | 詳細 |
|---|---|---|---|---|---|---|
| 2 | 20.60坪 | 220,770円/月(10,717円/坪) | 78万円 | 即 |
…新着物件
アクセス
的場ビルの物件情報
的場ビル(新宿区新小川町)は飯田橋駅(C1番出口)から徒歩7分の賃貸オフィスです。的場ビルは飯田橋駅(C1番出口)の他に牛込神楽坂駅(A3番出口)徒歩10分、神楽坂駅(1番出口)徒歩11分で利用も可能です。

