2階は現在募集がありません
ヒルサイド神楽坂 2階
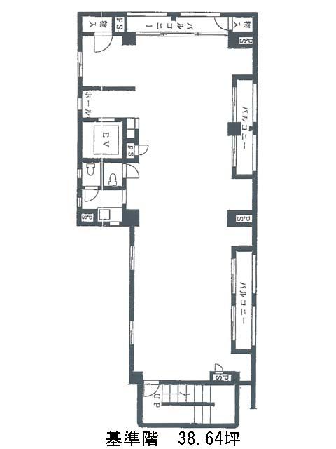
物件概要
ヒルサイド神楽坂のテナント募集中区画
現在、空室がございません。
アクセス
ヒルサイド神楽坂の物件情報
ヒルサイド神楽坂(新宿区神楽坂)は飯田橋駅(B3番出口)から徒歩4分の賃貸オフィスです。ヒルサイド神楽坂は飯田橋駅(B3番出口)の他に牛込神楽坂駅(A3番出口)徒歩5分、神楽坂駅(1番出口)徒歩7分で利用も可能です。

