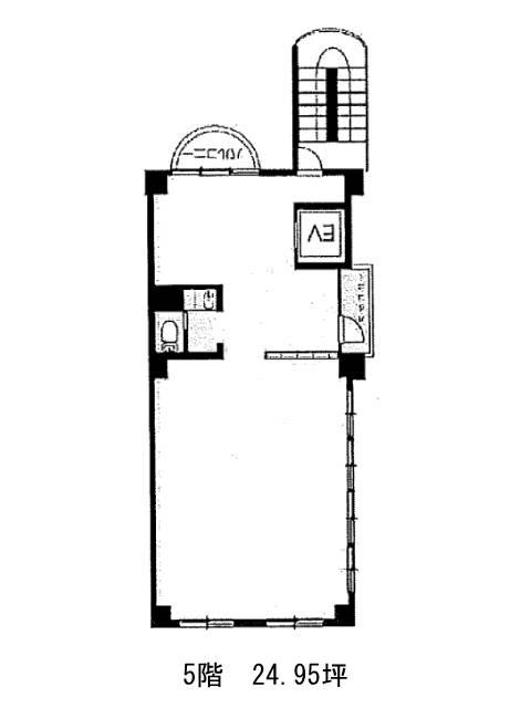
5階は現在募集がありません
神楽坂グリーンランドビル 5階
物件概要
神楽坂グリーンランドビルのテナント募集中区画
現在、空室がございません。
アクセス
神楽坂グリーンランドビルの物件情報
神楽坂グリーンランドビル(新宿区東榎町)は神楽坂駅(2番出口)から徒歩4分の賃貸オフィスです。神楽坂グリーンランドビルは神楽坂駅(2番出口)の他に江戸川橋駅(2番出口)徒歩9分、早稲田駅(1番出口)徒歩10分で利用も可能です。

