5階は現在募集がありません
錦華堂ビル 5階
物件概要
錦華堂ビルのテナント募集中区画
現在、空室がございません。
アクセス
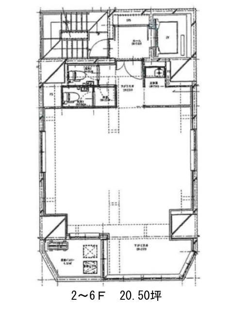
錦華堂ビルの物件情報
錦華堂ビル(千代田区神田猿楽町)は神保町駅(A5番出口)から徒歩4分の賃貸オフィスです。靖国通りから程近い賃貸事務所物件です。一階は文具店が入っているので目印にもなるでしょう。階段を2段上がったところにエレベーターが1基あります。窓が多く、ベランダもあるので採光性が良く、解放感ある空間になっています。ビルを出てすぐ、ポストがあるので郵便物の投函にも便利です。周辺はオフィス街、学生街でもありランチタイムは賑わいます。手頃な値段の飲食店も多く、お店選びにも困りません。錦華堂ビルは神保町駅(A5番出口)の他に御茶ノ水駅(御茶ノ水橋口)徒歩8分、新御茶ノ水駅(B3a番出口)徒歩8分で利用も可能です。

