第1電波ビル 2階 201
物件概要
物件番号
381-00113-10物件名
第1電波ビル所在地
- 東京都千代田区外神田2-4-4
- アクセスマップ
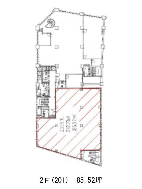
面積
85.52坪賃料(共益費含)
月額1,411,080円(16,500円/坪)
入居日
2026年3月保証金
10,262,400円礼金
なし更新料
なし償却費
なし竣工
1964年1月構造
SRC規模
地上8階/地下2階トイレ
男女別空調
個別空調エレベーター
有セキュリティ
有駐車場
無耐震
耐震補強済み基準階天井高
2580mm空室延床面積
85.52坪情報更新日
2025/11/17第1電波ビルのテナント募集中区画
| 階数 | 面積 | 賃料(共益費含む) | 保証金 | 入居可能日 | 検討リスト | 詳細 |
|---|---|---|---|---|---|---|
| 2 | 85.52坪 | 1,411,080円/月(16,500円/坪) | 1,026万円 | 2026年3月 |
…新着物件
アクセス
第1電波ビルの物件情報
第1電波ビル(千代田区外神田)は秋葉原駅(電気街口)から徒歩6分の賃貸オフィスです。1956年竣工。交差点の角地に位置した視認性抜群の地上8階、地下2階の鉄骨鉄筋コンクリート造のオフィスビルです。外観はベージュを基調とした落ち着いた色合いです。基準階面積は約120坪。フリーアクセス床となっているので、配線しやすいフロアです。個別空調完備、男女別トイレ設置。1階には飲食店がテナントとして入っており、徒歩圏内にコンビニエンスストアや郵便局もあるので利便性が高いでしょう。第1電波ビルは秋葉原駅(電気街口)の他に新御茶ノ水駅(B2番出口)徒歩7分、御茶ノ水駅(出口)徒歩7分で利用も可能です。

