6階 601は現在募集がありません
1フロア募集区画あり

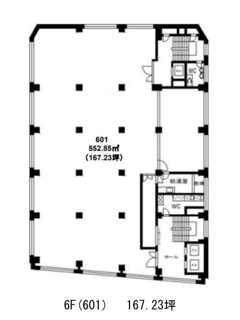
第1電波ビル 6階 601

前の写真 次の写真

物件概要

物件番号

381-00113-80

物件名

第1電波ビル

所在地

面積

100.36坪

賃料(共益費含)


入居日

募集終了

保証金

礼金

更新料

償却費

竣工

1964年1月

構造

SRC

規模

地上8階/地下2階

トイレ

男女別

空調

個別空調

エレベーター

セキュリティ

駐車場

耐震

耐震補強済み

基準階天井高

2580mm

空室延床面積

85.52坪

最寄駅

情報更新日

2025/11/17

第1電波ビルのテナント募集中区画

階数 面積 賃料(共益費含む) 保証金 入居可能日 検討リスト 詳細
2 85.52坪 1,411,080円/月(16,500円/坪) 1,026万円 2026年3月
…新着物件

アクセス

第1電波ビルの物件情報

第1電波ビル(千代田区外神田)は秋葉原駅(電気街口)から徒歩6分の賃貸オフィスです。
1956年竣工。交差点の角地に位置した視認性抜群の地上8階、地下2階の鉄骨鉄筋コンクリート造のオフィスビルです。外観はベージュを基調とした落ち着いた色合いです。基準階面積は約120坪。フリーアクセス床となっているので、配線しやすいフロアです。個別空調完備、男女別トイレ設置。1階には飲食店がテナントとして入っており、徒歩圏内にコンビニエンスストアや郵便局もあるので利便性が高いでしょう。
第1電波ビルは秋葉原駅(電気街口)の他に新御茶ノ水駅(B2番出口)徒歩7分、御茶ノ水駅(出口)徒歩7分で利用も可能です。

近隣のエリア・駅から探す