13階 13Aは現在募集がありません

秋葉原UDX 13階 13A

前の写真 次の写真

物件概要

物件番号

381-00384-100

物件名

秋葉原UDX

所在地

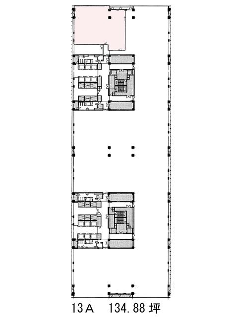
面積

134.88坪

賃料(共益費含)


入居日

募集終了

保証金

礼金

更新料

償却費

竣工

2006年1月

構造

SRC

規模

地上22階/地下3階

トイレ

男女別

空調

個別空調

エレベーター

セキュリティ

駐車場

耐震

新耐震基準

基準階天井高

2800mm

空室延床面積

最寄駅

情報更新日

2025/04/10

秋葉原UDXのテナント募集中区画

現在、空室がございません。

アクセス

秋葉原UDXの物件情報

秋葉原UDX(千代田区外神田)は秋葉原駅(電気街口)から徒歩4分の賃貸オフィスです。
2006年竣工、新耐震基準に適合した地上22階、地下3階建ての建物です。全面ガラス張りの外観は視認性が高く、秋葉原を代表する大型オフィスビルです。エントランスやエレベーターホールも広々としていて開放感があります。広々としたフロアには多くの窓が設置されており、採光性も良く、フリーアクセス床となっているので、配線しやすいです。トイレは男女別の設置となっています。周辺には多数の飲食店、商業施設、家電量販店などがあり賑やかなエリアです。
秋葉原UDXは秋葉原駅(電気街口)の他に末広町駅(1番出口)徒歩5分、岩本町駅(A2番出口)徒歩9分で利用も可能です。

近隣のエリア・駅から探す