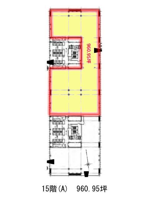
15階 Aは現在募集がありません
秋葉原UDX 15階 A
物件概要
秋葉原UDXのテナント募集中区画
現在、空室がございません。
アクセス
秋葉原UDXの物件情報
秋葉原UDX(千代田区外神田)は秋葉原駅(電気街口)から徒歩4分の賃貸オフィスです。2006年竣工、新耐震基準に適合した地上22階、地下3階建ての建物です。全面ガラス張りの外観は視認性が高く、秋葉原を代表する大型オフィスビルです。エントランスやエレベーターホールも広々としていて開放感があります。広々としたフロアには多くの窓が設置されており、採光性も良く、フリーアクセス床となっているので、配線しやすいです。トイレは男女別の設置となっています。周辺には多数の飲食店、商業施設、家電量販店などがあり賑やかなエリアです。秋葉原UDXは秋葉原駅(電気街口)の他に末広町駅(1番出口)徒歩5分、岩本町駅(A2番出口)徒歩9分で利用も可能です。

