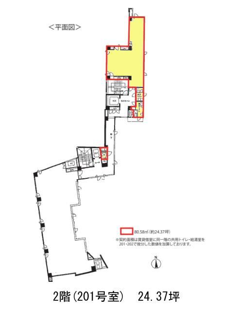
2階 201は現在募集がありません
九段アイレックスビル 2階 201
物件概要
九段アイレックスビルのテナント募集中区画
現在、空室がございません。
アクセス
九段アイレックスビルの物件情報
九段アイレックスビル(千代田区九段北)は九段下駅(7番出口)から徒歩2分の賃貸オフィスです。1994年竣工、地上8階地下1階建てです。外観がとても斬新な造りでモダンなビルであることに加え1階には神社があるため視認性は圧倒的に高いといえます。周辺にはカフェもあるので打ち合わせや息抜きにも気軽に利用できます。主な設備面としてはOAフロア、男女トイレ別、個別空調、機械警備、エレベーターは2基完備しています。また部屋は少し変わった形ですが基準階面積は約131坪とかなり広く無柱空間のため広々と使っていただけます。九段アイレックスビルは九段下駅(7番出口)の他に神保町駅(A2番出口)徒歩8分、飯田橋駅(A5番出口)徒歩9分で利用も可能です。

