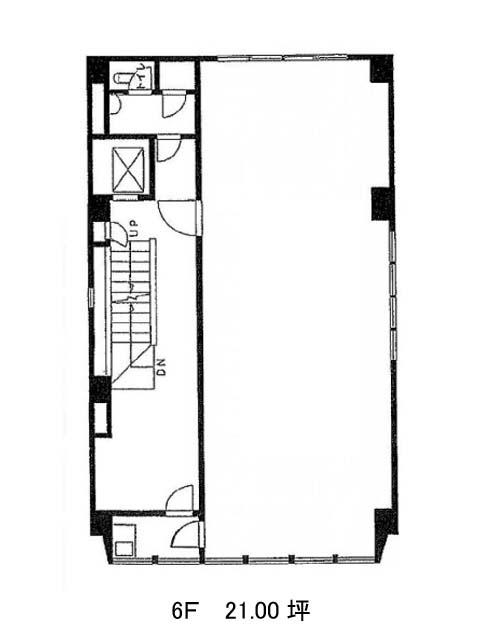
6階は現在募集がありません
静山ビル 6階
物件概要
静山ビルのテナント募集中区画
現在、空室がございません。
アクセス
静山ビルの物件情報
静山ビル(千代田区神田三崎町)は水道橋駅(東口)から徒歩3分の賃貸オフィスです。外観はライトベージュの吹付けにメタリックのフレームがポイントになっています。鉄筋コンクリート造で経年に関わらずしっかりとした造りのビルです。フロアによって貸室の区画が異なります。各8~31坪程の広さで様々なニーズにご対応可能かと思います。
静山ビルは水道橋駅の他に神保町駅が徒歩圏内です。周辺は学生街で活気があります。ビル周辺は飲食店が点在しているほか、徒歩3分圏内にコンビニが数軒ございますので、何かと便利でしょう。静山ビルは水道橋駅(東口)の他に神保町駅(A2番出口)徒歩8分、九段下駅(7番出口)徒歩10分で利用も可能です。

