5階は現在募集がありません
1フロア募集区画あり

千代田第1ビル/古室ビル 5階

前の写真 次の写真

物件概要

物件番号

389-00207-83

物件名

千代田第1ビル/古室ビル

所在地

面積

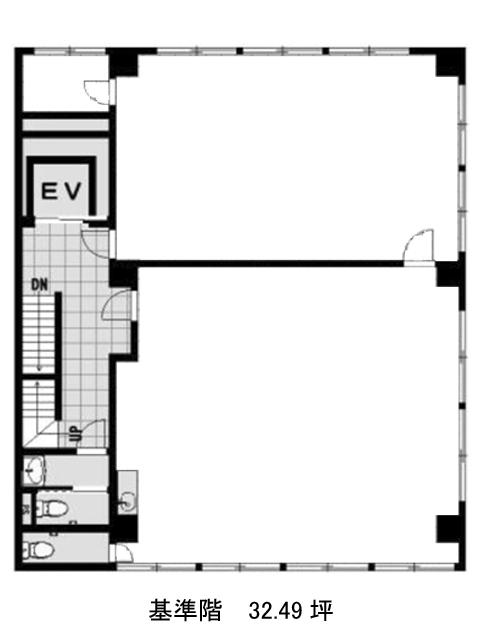
32.49坪

賃料(共益費含)


入居日

募集終了

保証金

礼金

更新料

償却費

竣工

1974年3月

構造

RC

規模

地上8階

トイレ

男女別

空調

個別空調

エレベーター

セキュリティ

駐車場

耐震

旧耐震基準

基準階天井高

空室延床面積

32.49坪

最寄駅

情報更新日

2025/08/19

千代田第1ビル/古室ビルのテナント募集中区画

階数 面積 賃料(共益費含む) 保証金 入居可能日 検討リスト 詳細
4 32.49坪 374,000円/月(11,511円/坪) 114万円
…新着物件

アクセス

千代田第1ビル/古室ビルの物件情報

千代田第1ビル/古室ビル(千代田区神田三崎町)は水道橋駅(西口)から徒歩4分の賃貸オフィスです。
千代田第1ビル/古室ビルは水道橋駅(西口)の他に神保町駅(A2番出口)徒歩6分、九段下駅(7番出口)徒歩9分で利用も可能です。

近隣のエリア・駅から探す