3階は現在募集がありません
弥栄(イヤサカ)ビル 3階


物件概要
弥栄(イヤサカ)ビルのテナント募集中区画
現在、空室がございません。
アクセス
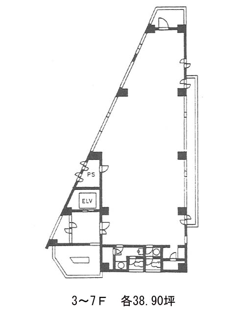
弥栄(イヤサカ)ビルの物件情報
弥栄(イヤサカ)ビル(千代田区神田三崎町)は水道橋駅(東口)から徒歩1分の賃貸オフィスです。
弥栄(イヤサカ)ビルは水道橋駅(東口)の他に神保町駅(A2番出口)徒歩10分、後楽園駅(2番出口)徒歩10分で利用も可能です。