少年画報ビルのテナント募集中区画
| 階数 | 面積 | 賃料(共益費含む) | 保証金 | 入居可能日 | 検討リスト | 詳細 |
|---|---|---|---|---|---|---|
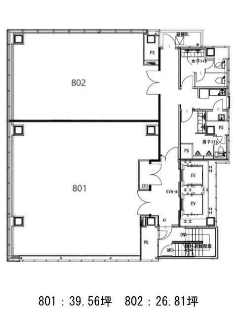
| 8 | 26.81坪 | 648,802円/月(24,200円/坪) | 353万円 | 即 |
…新着物件
アクセス
少年画報ビルの物件情報
少年画報ビル(千代田区神田三崎町)は水道橋駅(西口)から徒歩4分の賃貸オフィスです。2023年11月竣工、地上8階建てS造の新築ビルです。白い壁面に、黒みがかったガラス窓が並びシャープな印象の外観です。基準階面積は66.22坪。貸室は大小様々あり、バリエーションに富んでいます。EV2基・オートロック・OAフロア・貸室外の男女別トイレといった設備仕様をしています。貸室は支柱が部屋の中央に無いレイアウトのしやすい形状をしています。周辺に飲食店やコンビニが充実しており、ランチによいでしょう。少年画報ビルは水道橋駅(西口)の他に飯田橋駅(A5番出口)徒歩8分、九段下駅(7番出口)徒歩9分で利用も可能です。

